袖ケ浦店舗(IR000325)

[物件種別:店舗・事務所]

賃料/管理費等 55万円/0円 敷金 0円 礼金 1ヵ月
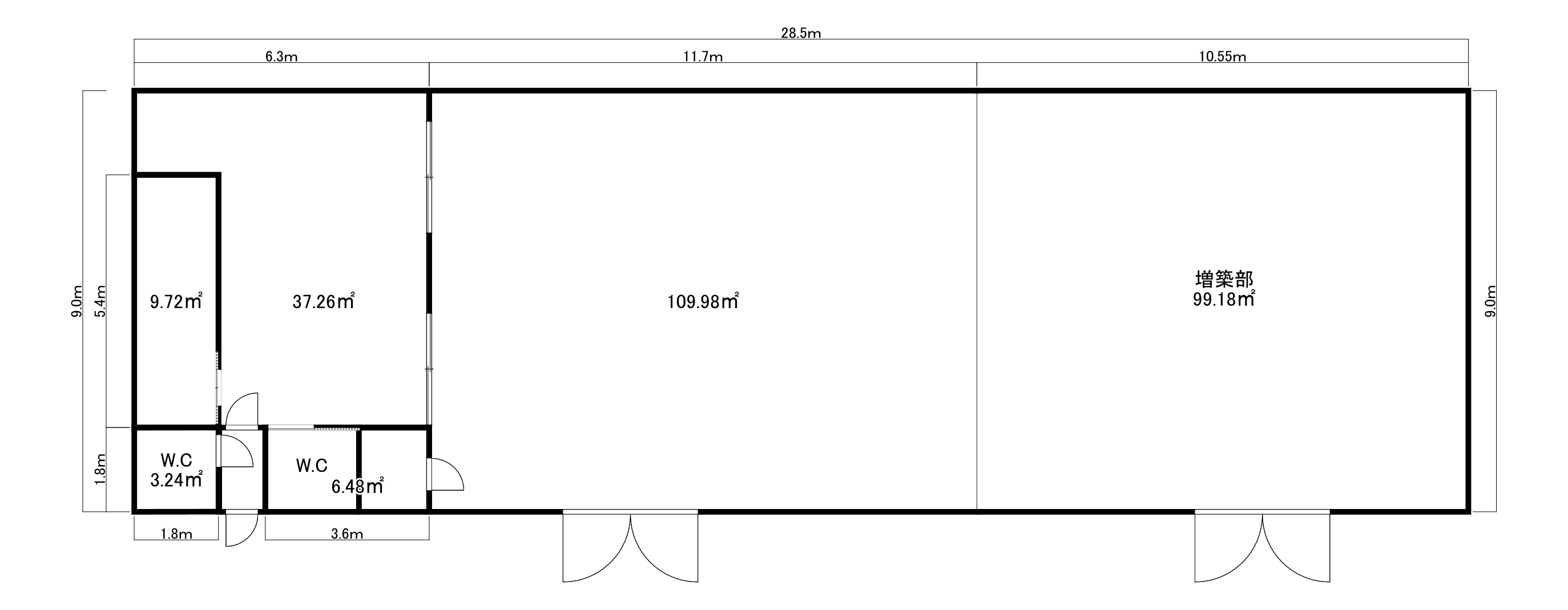
間取り 面積 265.86m2 築年月 1990年11月
住所 千葉県袖ケ浦市神納1丁目
アクセス JR内房線袖ケ浦駅 徒歩 19分

仲介手数料 0円 更新料 1ヵ月 駐車場料金 0円
保証金 4ヵ月 更新事務手数料 0円 契約期間 0年
  • 図面有
  • 最上階
  • 追焚き
  • CSアンテナ
  • TVドアホン
  • 画像有
  • 礼金無
  • エアコン
  • BSアンテナ
  • 楽器相談
  • 駐車場有
  • 敷金無
  • ロフト付
  • オートロック
  • 事務所可
  • 2階以上
  • バス・トイレ別
  • 室内洗濯機置場
  • フローリング
  • ペット相談
  • 1階限定
  • ガスコンロ
  • CATV
  • 角部屋
  • 保証会社加入
  • 保険加入
  • 店舗保証金
  • 上水道
  • 下水道
  • 都市ガス
  • 電気
  • プロパンガス
  • 井戸
  • 私営水道
  • 浄化槽
  • 側溝
  • 汲取
  • セットバック
  • 車庫
  • カーポート
  • P2台以上
  • 平屋
  • 公道
  • 私道
  • 専用庭
  • ルーフバルコニー
  • エレベーター
  • 角地
  • 二方向道路

部屋の写真・間取りなど

物件の概要

名称 袖ケ浦店舗 構造
間取り詳細 駐車場 空有
所在階/階数 1階 採光面
設備・条件
取引態様 貸主
備考
Copyright© fukagawa-epm All Rights Reserved.